Raccard du Dâ

Description

Ce magnifique raccard a été rénové en 2020 et 2021 en respectant l’existant et en le magnifiant. Il était inutilisé depuis plusieurs années, ses galeries étaient tombées en ruines, l’écurie au sous-sol était impraticables.

Le résultat final fait la curiosité et l’admiration du passant et des villageois et la fierté de son nouveau propriétaire qui a eu le coup de foudre pour cet objet collectif, dans un cadre bucolique.

Ajoutez à cela le travail incroyable des ouvriers des entreprises de la commune qui ont mis tout leur cœur et leur savoir-faire pour réaliser sa transformation.

 

Informations

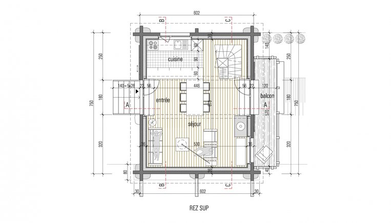
Nombre de pièces3.5
Surface habitable90
Surface terrain300
Étages2
Salle de bain1
Année construction1920
Année rénovation2016

Contact

M.Eric Moix
T +41 79 433 93 22
info@sandulin.ch


Top